Nemo 2014

Villa - Ecopark HY

Villa Ecopark thiết kế cho một CĐT ngành Dầu khí - Một chuyên gia về kỹ thuật và luôn có những yêu cầu khắt khe.

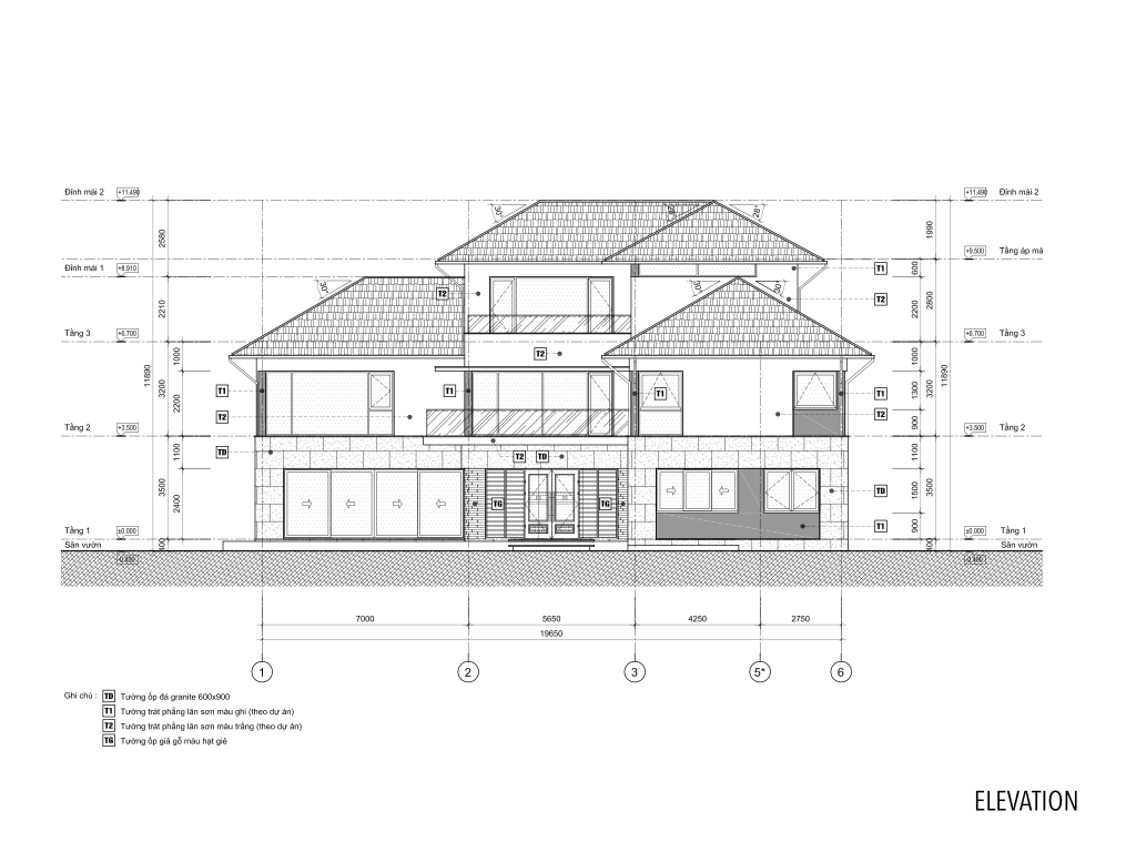
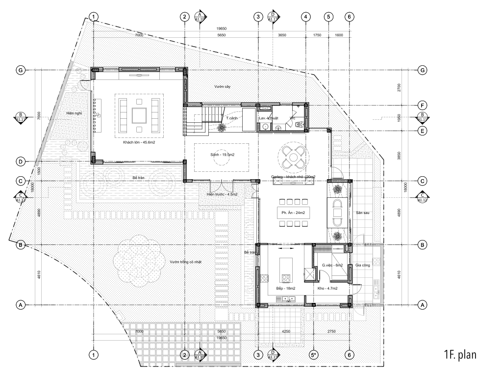
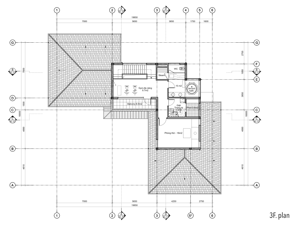
Mảnh đất có có hình thù khá đặc biệt - dạng vòng cung, với những gianh giới đa giác và đường cong. Khu đất nằm trong Khu đô thị Ecopark - một khu đô thị có mật độ cây xanh đô thị rât cao, kiến trúc chung của khu đô thị khá đồng bộ với các hệ mái dốc...

Các khối chính được thiết kế quây xung quanh một lõi vườn ở giữa. Công trình có sự hoà đồng với tổng thể xung quanh, có sự nghiên cứu phù hợp với kiến trúc nhiệt đới. Việc sử dụng các khối mạch lạc, hệ mái dốc các không gian mở kèm sân vườn tiểu cảnh làm cho cuộc sống của con người được an lành, thoái mái cũng như bền vững.

Công trình đã hoàn thành sau 2 năm xây dựng

Thiết kế chính: Nghiêm Phong + Hồ Cường

Bình luận

Điện thoại

(84) 989 533 545

Địa chỉ

CN3, Cụm CN Từ Liêm, Bắc Từ Liêm, Hà nội